<
Наверх

+7 (495) 796-11-35

пн. - пт. с 9.00 до 18.00




Новости:

Как добиваться результата через кросс-функциональное взаимодействие?

12.03.2026

Успейте забронировать участие в тренинге Сергея Дубовика на самых выгодных условиях.

18.02.2026

На этом бесплатном вебинаре ищем точки, где интересы сторон реально совпадают.

30.01.2026
Все новости


Правила сайта

Продолжая использовать наш сайт, вы соглашаетесь на использование файлов cookie и данных в соответствии с Политикой защиты персональных данных и с Политикой использования файлов cookies. Если вы не согласны, пожалуйста отключите их в настройках браузера.

Полный текст политики доступен по ссылке.


О мерчендайзинге в маленьких магазинчиках


Екатерина Богачева

31.03.2008

Корр: Екатерина, расскажите, пожалуйста, насколько важно искусство мерчандайзинга для небольших магазинов, исповедующих заприлавочную торговлю. Больше всего таких вопросов в нашу редакцию поступает из небольших региональных городов. Бытует мнение, что мерчендайзинг хорош и применим сугубо для гипер и супермаркетов. Приведите, пожалуйста, примеры из Вашей практики, когда мерчендайзинг хорошо работал в мелкой региональной рознице.

Екатерина Богачева: Самое главное, с чего надо начинать – это перевод на самообслуживание. Сам факт самообслуживания в магазине дает возможность покупателю дотронутся до товара, который он покупать не планировал, как правило это «роскошь» - свежие экзотические фрукты, кондитерка, деликатесные группы мяса и рыбы. За счет этих прикосновений растет чек в магазине не пропорционально по всем товарным группам, а в первую очередь за счет тех групп, на которых торговая точка зарабатывает максимальную наценку. Самообслуживание возможно для площадей примерно от 40 м.кв. Отправной точкой возможности перевода на самообслуживание является ширина помещения. Если она составляет хотя бы 480 см, то это становится вполне реальным. В Вашем магазине вдоль стен станут стандартные стеллажи, глубиной в 60 см, низкотемпературная ванна глубиной в 120 см и останутся вполне допустимые проходы по 120 см. Самообслуживание в маленьком магазинчике способно увеличить погонные метры выкладки в магазине. За счет этого магазин может представить в 2-3 раза больше ассортимента и запаса продукции, что в свою очередь подтянет соответствующее увеличение товарооборота.

Итак, стоит ли двух-трехкратное увеличение товарооборота того, что бы поработать над перестановкой? В каждом конкретном случае это надо считать.

Итак, заветная перестановка оборудования свершилась, произошла покупка нового кассового узла, ячеек-сумочной, корзинок для покупателя и недостающего торгового оборудования для заполнения всего периметра помещения. Давайте попробуем рассмотреть стандартные ошибки.

Первая ошибка – это бездумно обратиться к продавцу оборудования и попросить сделать план расстановки оборудования. Бывают, конечно, и у продавцов оборудования хорошие варианты расстановки. Но это скорее исключение из правил, поверьте нашему опыту создания планировочных решений. Всегда надо помнить, что у Вас с поставщиком оборудования разные цели. У него – продать больше оборудования, у Вас – больше заработать с метра площади магазина. Иногда эти две задачи могут стать несовместимыми. Обращайтесь за перепланированием магазина к тому, кто сегодня имеет богатейший опыт работы в этой сфере. Например, мы на сегодняшний день сделали в России, Украине, Прибалтике, Белоруссии уже не одну сотню магазинов и имеем достаточный опыт, чтобы довольно быстро оценить даже будущий товарооборот Вашего магазина после реконструкции, не говоря уже о грамотной планировке с зонами товарного соседства.

Итак, ошибки:

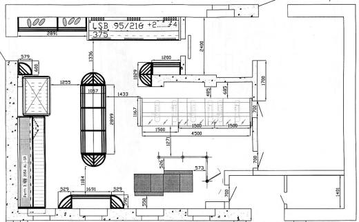
На этом плане входная группа предполагает, что покупатели, зашедшие в магазин столкнутся с выходящими из кассы. Не каждый первый раз зашедший в магазин сможет сообразить, что вход в торговый зал находится справа. Предложения переформатировать входную группу, конечно же не последует от поставщика торгового оборудования – это лишняя работа, не связанная с расстановкой.

Итак, мы вошли в торговый зал, и сразу перед собой увидели гастрономический прилавок с колбасами, рыбой и сырами. У прилавка, как это обычно бывает, будут стоять покупатели, что бы попросить взвесить им кусочек колбаски. Стоящая очередь не только заслонит весь вид товаров этой категории в магазине. Но и полностью заблокирует вход в магазин.

А холодильная ванна, приставленная к стене? Ее глубина составляет минимум 120 см, что предполагает подход покупателей как минимум с двух сторон. Т.е. достать пельмени или мороженое из низкотемпературной бонеты, приставленной к стене, покупателям будет крайне затруднительно. Все эти ошибки проектирования отрицательно скажутся на среднем чеке в новом магазине после реконструкции.

Итак, что же мы можем сделать в таком маленьком торговом зале в 50 м.кв.?
Предложение профессионала может быть примерно таким:

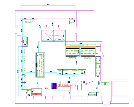
Убираем тамбур, используем его для входа в магазин прямо, а освободившееся пространство отдаем под сумочную. Прилавки убираем в глубь магазина, где можно отдать больше места для очереди из покупателей. Низкотемпературный островной холодильник размещаем в центре, что бы покупатели могли подойти к нему с двух сторон. Над холодильником организуем супер-структуру с двумя полками, на которой размещаем группу консервации и соусов. Тандем с полноценным прикассовым оборудованием вполне помещается.

Однако, все так гладко только на первый взгляд. При таком размере торгового зала существует со стороны собственников магазинов довольно сложно преодолимая догма. Это обязательное наличие прилавка в магазине. Если мы убираем прилавок и заменяем его на пристенный ригал для колбас, сыра и рыбы в порционной упаковке, мы увеличиваем количество погонных метров выкладки данных товарных групп в 2,5-3 раза! Конечно, это будет способствовать только росту продаж!

Данный план намного лучше предыдущего только за счет полного отсутствия гастрономического ряда в маленьком магазине.

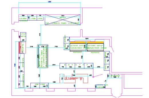
Однако и этот план не идеален с точки зрения удобства покупателей и максимального использования торговых площадей. Предложение профессионала может быть примерно таким: Присоединяем часть технологических помещений к торговому залу справа, что бы получить более-менее ровный и удобный зал:

И засчет малюсенькой комнатки мы уже имеем полноценный минимаркет с промо-зоной и паллетной выкладкой у входа, самообслуживанием в зоне колбас и сыра, холодильный пристенок для рыбы и пресервов и даже маленький гастрономический прилавок для кулинарии и деликатесов. Стоит ли говорить, что основные группы магазина – хлеб, мясо и молочка максимально удалены друг от друга, что не будет способствовать столпотворению в часы пик в и без того маленьком магазине. На этом примере я кратко пояснила суть моей работы и комплексный, творческий подход к решению проблем маленьких магазинчиков.

Следующий пример - один из моих клиентов «Радуга-свет» в г.Солигорске - совместно с нами реорганизовал вот такой магазин в 90 м.кв:

в вот такой современный минимаркет:

Эта наша с клиентом совместная работа нашла свое признание – первое место в текущем году в конкурсе на лучший магазин в области. Согласитесь, разница между тем что было и тем, что стало есть. И она не только визуальная, в товарообороте это порядка 250% прироста. Из технологических приемов, которые были использованы и реализованы в этом магазине – перевод на самообслуживание с увеличением торговых площадей с 90 до 120 м.кв, внедрение знаменитого правила двух пальцев, при котором полка должна соответствовать по высоте продаваемому товару, расстановка товарных групп с учетом максимально дополняющего товарного соседства, организация золотого треугольника движения покупателей по магазину, правильное торговое освещение, правильная выкладка лицом к покупателю, эффект кариеса, исключение из цветовой гаммы зала холодных оттенков, и конечно же дизайн торгового зала, который способствует длительному нахождению покупателя в торговом зале, хорошей навигации покупателей и быстрому нахождению покупателем планируемого товара. Поздравляем «Радугу-свет» с победой в конкурсе!

Давайте рассмотрим еще одну из последних наших работ - дебют универсама «Татьяна». Теперь это магазин самообслуживания в 100 м.кв. Вот так выглядел маленький прилавочник до реконструкции и моего вмешательства:

Стоит ли говорить, что он не отличался от многих тысяч магазинов в мелких городах.
И вот так он стал выглядеть после удвоения его торговой площади за счет складов и кабинетов, а так же перевода на самообслуживание с применением последних наших разработок в торговых технологиях – черного торгового оборудования, металлогалогенового спецсвета, интуитивной навигации, использования цветового зонирования и много другого:

Маловероятно, что идея увеличения торгового зала за счет неторговых площадей придет в голову поставщикам оборудования. Эта задача для настоящего профессионала в розничной торговле. Стоит ли говорить, что пока товарооборот только удвоился, но мы ожидаем минимум 4-х кратного прироста в товарообороте в течение ближайших трех месяцев после открытия.

Итак, практика показывает, что технологии мерчендайзинга вполне работают и в маленьких магазинах, а не только в гипер- и супермаркетах. Остается добавить, что мы ждем вопросов от всех даже самых мелких магазинов по поводу профессиональной реорганизации, дизайна, обучения персонала современным стандартам работы и мерчендайзингу. Жду Ваших вопросов, которые станут темой следующих публикаций, на мой адрес электронной почты boss@merchandising.by, можете присылать Ваши запросы по реконструкции магазина, обучению персонала на src@src-master.ru.

А остальные наши координаты Вы всегда можете найти на нашем сайте www.merchandising.by или www.src-master.ru.



Вы можете задать автору интересующие Вас вопросы по телефону +7 (495) 796-11-35 или по электронной почте avtor@src-master.ru.


 Семинары автора с открытой датой:




Обучение антикризисному управлению
Курсы ВЭД
Курсы для генеральных директоров
Курсы для директора по персоналу
Обучение для торговых представителей
Курсы по интернет маркетингу
Обучение по профстандартам
Курсы управления ассортиментом в рознице
Тренинг управленческих навыков

Тренинг по коммуникации
Курсы мерчендайзера
Управление мотивацией персонала
Коучинг тренинг
Система обучения персонала
Оценка персонала
Курсы по подбору персонала
Тренинг по ораторскому искусству

Тренинги - системное мышление
Тренинги продаж b2b
Тренинг продаж по телефону
Обучение торгового персонала
Тренинг для тренеров
Тренинг по переговорам
Тренинг по активным продажам
Тренинг по командообразованию

Тренинг отдела продаж
Курсы коммерческого директора
Курсы по управленческому учету
Курсы для финансовых директоров
Курсы по финансовому анализу
Тренинг - финансы для нефинансистов
Тренинг по лидерству
Курсы E-learning